- 懐かしい和の佇まいを残しながら、モダンなデザインを取り入れた古民家のリフォーム。
「暮らしにゆとりを生み、家族の思い出と共に暮らす家。」
丹羽郡大口町で行った古民家リフォーム(M様邸)のご紹介です。
ご家族が子供の頃から慣れ親しみ、たくさんの思い出をつくりながら暮らしてきた大切なお住まいをこれからもを受け継いでいきたいという思いから今回のリフォームが実現しました。
以前のM様邸の外観。

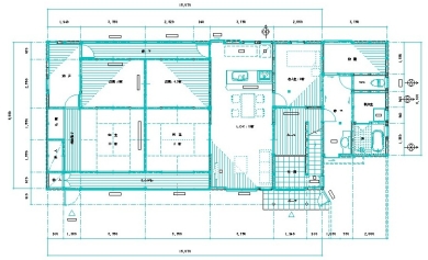
古民家リフォーム:間取り(平面図)

間取りを見直し生活動線を改善。
リビングを生活の中心に置き、ドアの位置を変えて行き止まりのない平面(間取り)計画を行うことで暮らしやすい家になりました。
時間が作り出した古き美しさと趣を感じる大人の和モダンリフォーム。
おしゃれな和のデザインを取り入れ、懐かしい梁と踏み板天井はそのままに。
M様ご家族の想いをカタチにしたレトロで新しいお住まいをご覧ください。
和モダンなデザインに生まれ変わった外観

玄関戸と窓(掃出し)も取り換え、外壁は左官職人さんの塗り壁仕上げです。
玄関ホール

奥に見えるのは元からあった千本格子の内窓。
昔の面影を残すために再利用しました。

屋根裏部屋への階段

古いところは古いままに生かす建築。
屋根裏部屋の黒い梁は磨きをかけてそのまま現しに。

時間と記憶をとどめる空間。
大人の隠れ家のようなとっておきの場所(部屋)ができました。

和モダンに仕上げたLDK
暮らしにゆとりが生まれる開放感いっぱいのワンフロアにしました。

奥様がこだわったオープンキッチン(クリナップのフルフラット対面キッチン)
ホワイトのキッチンはおしゃれで清潔感がありますね。

「好きなところはそのまま残す。」
リビングは経年美を感じる梁天井をあえて見せることで懐かしくて新しい空間になりました。

梁天井は着色したものではなく時間が作りだした自然な色です。
また、和室(左)との境には光を取り込むためにガラスの格子戸を入れました。
縁側・廊下


トイレとバスルーム
トイレはおしゃれで明るく清潔感のある空間に。
そして、保温性の高い浴槽と断熱パネルで覆われたシステムのお風呂は冬でもあたたかく快適な入浴を楽しんでいただけると思います。
【大口町M様邸リフォームの内容】
■リフォームした場所
1階
・玄関、柱建て庇
・ホール
・LDK
・納戸×2室
・おばあさんの部屋
・夫婦寝室
・和室×2部屋(10畳と8畳)
・縁側、廊下
・浴室(システムバス)
・洗面脱衣室
・トイレ
屋根裏部屋(ロフト)
・趣味を楽しむ部屋
・収納部屋
■内装仕上げ
床 ー 無垢フローリング、木質複合フローリング ※部屋によって使い分け。
壁 ー 漆喰(しっくい)塗り、無垢の板張り、クロス(壁紙)
天井 ー 無垢の板張り(梁見せ踏み板天井、勾配天井)、クロス(壁紙)
■玄関戸
・YKK AP 和風縦格子タイプ二本引き戸
■窓
・YKK AP アルミサッシ(複層ガラス)
■室内建具
・古建具(再利用)
・造作建具、障子戸
■外壁
・左官塗り壁仕上げ
- こちらはM様邸リフォーム工事の様子です。
内部の解体後、ベタ基礎を作り骨組(土台と柱)から補強を行いました。
※土台と柱は国産材のヒノキを使用しています。
窓周りも新しくするために取り外し(左)、間取り変更の所に壁を作ります(右)
昔の面影を感じられるように踏み天井の梁を現し(見せる)にした設計です。
古民家といえば黒い柱に白漆喰の壁。
和室は柱を現しにして左官塗り壁で仕上げました。